Nos biens immobiliers
Liège
-Ensemble entrepôt + bureaux à vendre au coeur du zoning de Villers-le-Bouillet !
rue le Marais 12A - 4530 - Villers-le-Bouillet
A vendreBureaux
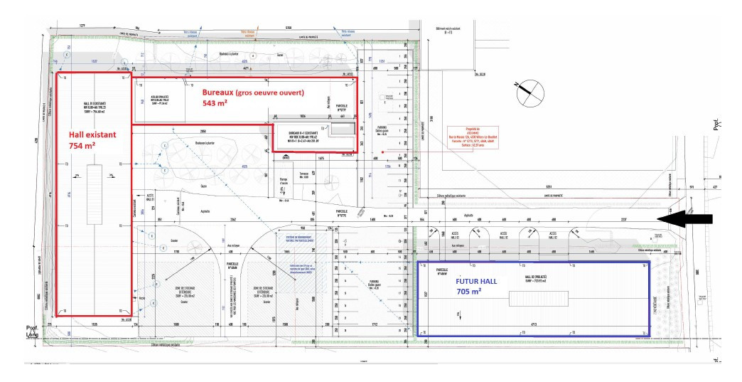
± 543 m²Entrepôts
± 754 m²Terrains
± 6198 m²Superficie bâtie totale
± 1297 m²
Ensemble composé d'un entrepôt semi-industriel de ± 754 m² et d'un bâtiment de bureaux (équipements de base) de ± 543 m² idéalement situé au sein du zoning de Villers-le-
Bouillet et à proximité immédiate de l'axe autoroutier E42 Liège-Namur.
Permis obtenu et disponible pour la construction d’un nouveau hall complémentaire de ± 705 m² sur la parcelle avant. Informations sur demande.
Zone au plan de secteur : industrielle
Pour être contacté par rapport à ce bien, remplissez le formulaire qui suit :












